Modular Homes

Boxwood Series

Northstar Boxwood

A big-room ranch style home design. The Northstar Boxwood is a 2 bedroom, 2 bath with a large central living area. Adding a basement design works well with the optional staircase. The kitchen has ample counterspace and a center island.

  • 1540 sqft
  • 2 bedroom, 2 bath
  • 5/12 roof pitch
  • Large living area and bedrooms
  • Master bath with separate water closet
  • Optional staircase to the basement
  • Moderately sized decks
  • Bar area provides adequate kitchen counter space
  • 3 exterior doors open to decks and car parking area
  • 56' long and 27'-6" wide footprint
  • Reversed floor plan available
  • Home availability may be limited by site location load

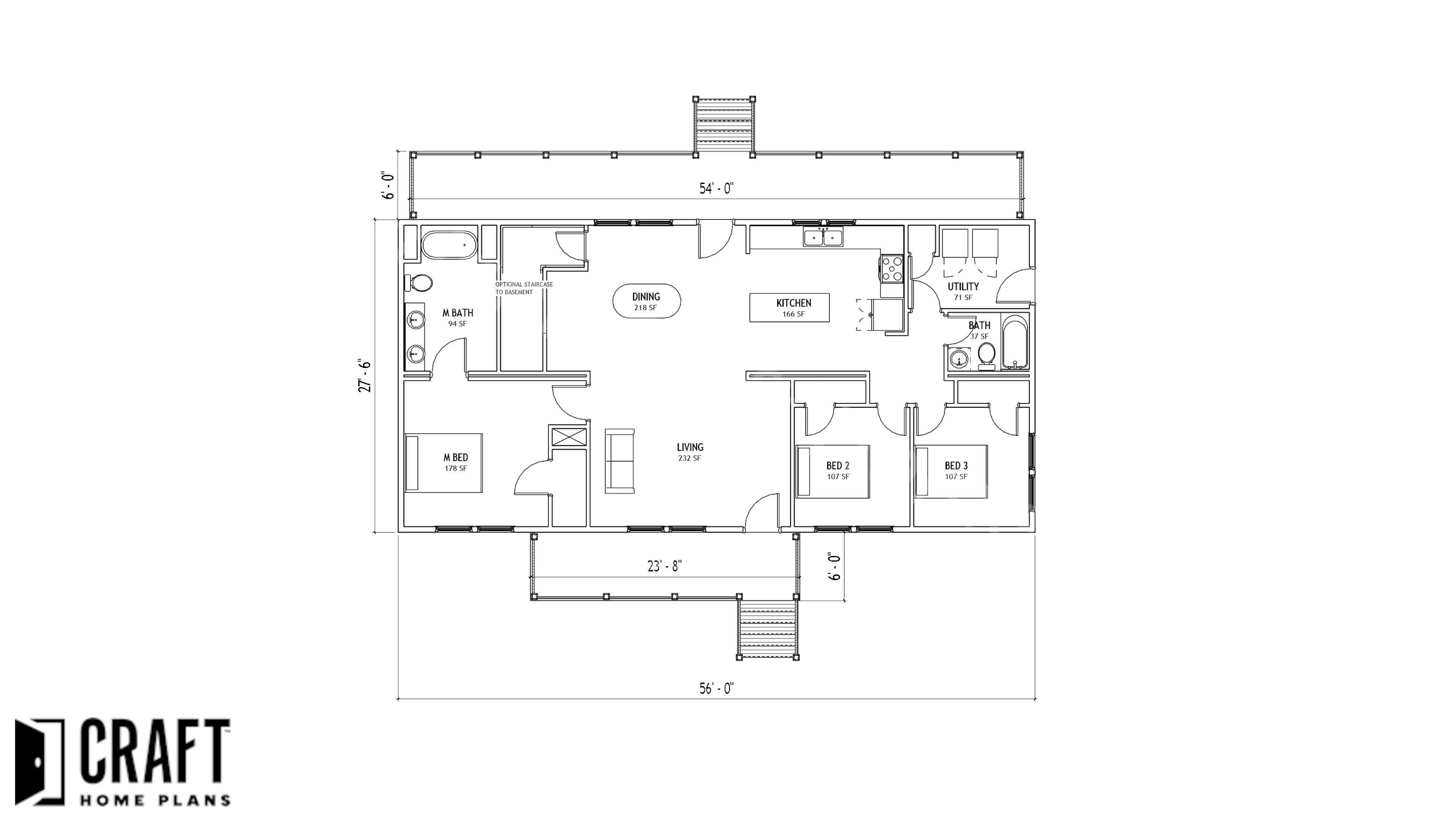
Highlander Boxwood

An open-feel ranch style home design. The Highlander Boxwood is a 3 bedroom, 2 bath with a large central living area. Adding a basement design works well with the optional staircase. The kitchen has a large center island for serving and windows above the kitchen sink.

  • 1540 sqft
  • 3 bedroom, 2 bath
  • 5/12 roof pitch
  • Large living area and master bedroom
  • Wide master bathroom with space for tall cabinetry and storage
  • Optional staircase to the basement
  • Large back deck
  • Large kitchen island and windows above kitchen sink
  • 3 exterior doors open to decks and car parking area
  • 56' long and 27'-6" wide footprint
  • Reversed floor plan available
  • Home availability may be limited by site location load

Wintergreen Boxwood

A traditional ranch style home design. The Wintergreen Boxwood is a 3 bedroom, 2 bath with the living area on the end. Adding a basement design works well with the optional staircase. The horseshoe kitchen has a large center island for serving and windows above the kitchen sink.

  • 1540 sqft
  • 3 bedroom, 2 bath
  • 5/12 roof pitch
  • Large living area and master bedroom
  • Master bathroom with tall cabinetry and storage
  • Optional staircase to the basement
  • Large front deck
  • 2 exterior doors open to front and back decks
  • 56' long and 27'-6" wide footprint
  • Reversed floor plan available
  • Home availability may be limited by site location load

Littleleaf Boxwood

An end-entrance ranch style home design with useful pantry, utility, and flex rooms. Made for a narrow lot, the Littleleaf Boxwood has a flex room, 3 bedrooms, and 2 bathrooms on one side of the house and the living area on the other. The kitchen has an island and pantry. The utility room has extra space and a utility sink. Adding a basement design works well with the optional staircase.

  • 1540 sqft
  • 3 bedroom, 2 bath
  • 5/12 roof pitch
  • Large master bedroom separated from the 2 other bedrooms by a useful flex room
  • Master bathroom has space with a large shower and freestanding tub
  • Option: replace some of the flex room and pantry space for a staircase to the basement
  • Large side deck and optional wrap-around deck
  • 2 exterior doors open to front and side decks
  • 56' long and 27'-6" wide footprint
  • Reversed floor plan available
  • Home availability may be limited by site location load